Vivienda Múltiplo de Tres

Casa modular en Peralta

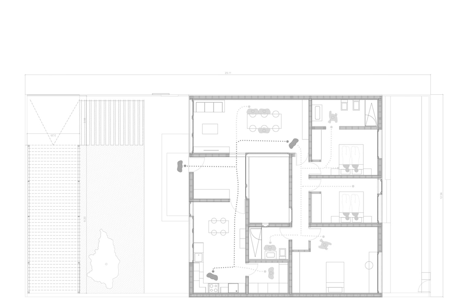
El proyecto de “la vivienda múltiplo de tres” nace de un patio interior como una pieza central que articula los espacios interiores, pero que después se acaba convirtiendo en 3 patios reflejando así los tres habitares distintos que conforma la casa. Una casa de 3 patios para 3 integrantes.

Cliente: Sara y Oscar
Superficie: 137,71 m2
Estado: Finalizado
Cronología: Feb – Julio 2020
Localización: Peralta, Navarra
Tipo de obra: Vivienda Modular
Precio de construcción: 163.613,26€

La casa busca la luz cenital que le proporciona los 3 patios, dando así una fachada sin aberturas que se protege de las miradas desde la calle. Esta envolvente solo se rompe en 1 punto en el que se abre un pequeño faro en la parte superior de las estancias privadas, arcando de esta forma un punto de referencia en el proyecto.

Esta abertura acompaña la geometría del proyecto acentuando el crecimiento de la vivienda, ya que conforme las estancias se vuelven más privadas, se vuelven más pequeñas y se expanden en vertical.

Los tres patios formulan diferentes CRONOS, ya que la propia forma de habitar la vivienda se modifica con el transcurso del día. Un gran patio delantero al que se abre los espacios comunes, donde las actividades de día se mezclan con el exterior, el patio central que funciona de intersticio entre el día y la noche accesible desde ambos lados pero filtrando el paso entre uno y otro.

Y por último el patio trasero, de menor escala que acoge y amortigua el contacto del área más privada con el exterior.

Este desarrollo modular es flexible y orgánico, acercándose al habitar más natural.

La vivienda consta también de una gran eficiencia energética, con calefacción de suelo radiante y aerotermia. Este sistema sumado a unas carpinterías de gran eficiencia y un sistema de ventilación mecánica constante con recuperación de calor, proporcionan las condiciones higrotérmicas adecuadas.

Por ultimo tanto la vivienda como los patios se cierran perimetralmente mediante una valla que permite que gane la escala adecuada para el contexto que la rodea, protegiendo la privacidad del interior y filtrando la luz que llega a los paños de vidrio inferiores

Croquis realizado por Alejandro Lezcano Maestre, Arquitecto Jefe en Cronotopos Arquitectura