Ático a dos tiempos:

Reforma y diseño de interiores en Zaragoza

Hay espacios que no solo se habitan: se atraviesan con la memoria, se recuerdan con el cuerpo. En esta pequeña vivienda, tradujimos nuestra mirada sobre el tiempo en una distribución donde cada zona —de día y de noche— se vive a su propio ritmo, pero nunca aislada de la otra. La arquitectura, aquí, no impone una frontera, sino que propone una transición natural, una pausa entre dos tiempos que coexisten.

Cliente: Privado
Superficie: 81 m2
Estado: Finalizado
Cronología: 2024
Localización: Zaragoza, España
Tipo de obra: Reforma y diseño de interiores

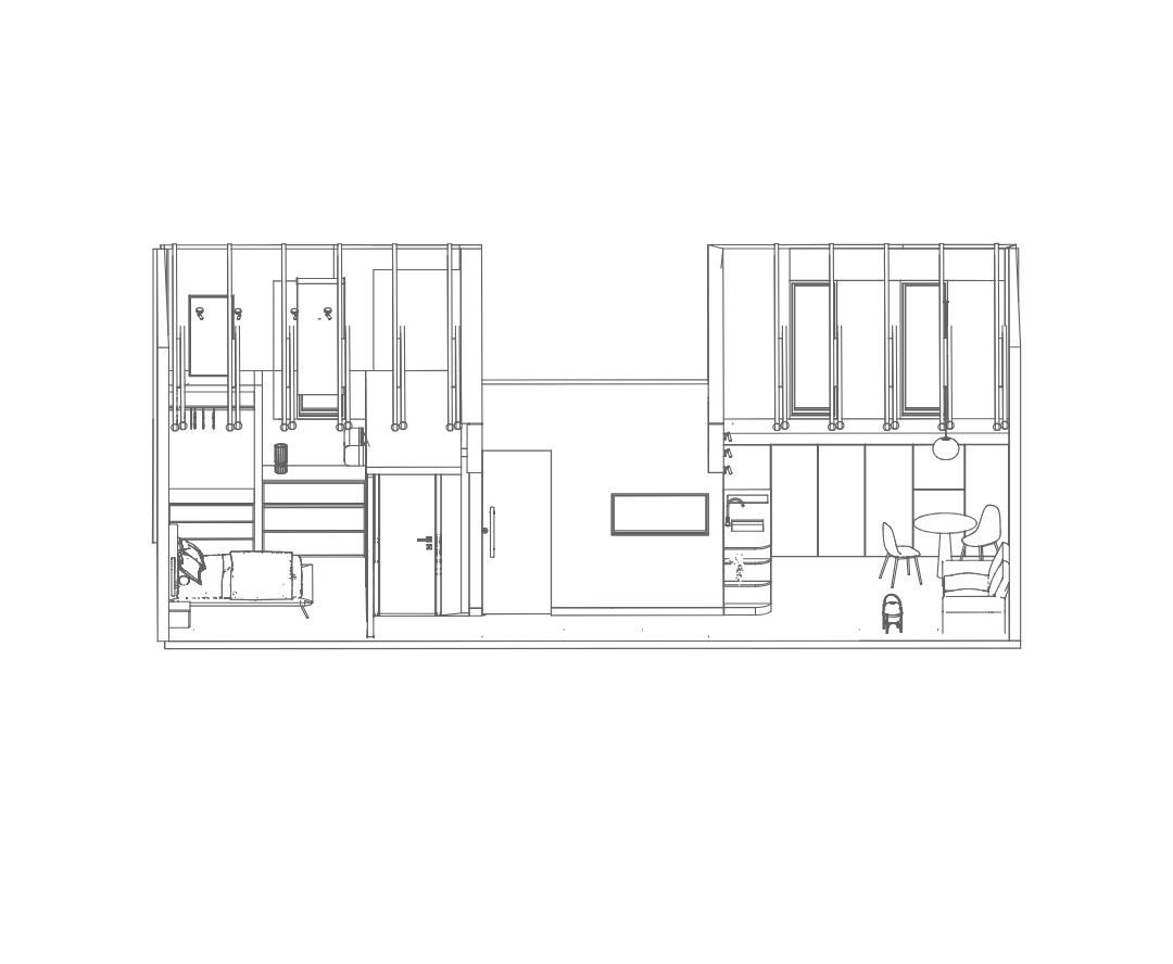
El punto de partida fue una planta reducida, un ático donde cada metro contaba, pero también cada hueco de luz, cada gesto estructural preexistente. La primera decisión proyectual fue tan respetuosa como decidida: liberar las vigas de madera que atravesaban el techo y devolverlas a su estado visible. Estas vigas, antes ocultas, se convirtieron en las protagonistas silenciosas del espacio.

Como las costillas de esta vivienda, la recorren de extremo a extremo, aportando ritmo, continuidad y una generosa percepción de altura. Sacar a la luz lo que ya estaba era, también, una manera de vincular el proyecto con su pasado, reconociendo la belleza del tiempo acumulado.

La distribución interior nace de una clara intención de orden temporal: día y noche se disponen en extremos opuestos, unidos por un pasillo que actúa como bisagra, como eje de transición. Esta circulación central, donde se sitúa la entrada, permite que el tránsito por la vivienda fluya con naturalidad, sin interrupciones ni cambios bruscos.

Así, la arquitectura responde no solo a una lógica funcional, sino también sensorial: moverse por este ático es recorrer un relato espacial, donde cada zona mantiene su carácter sin perder la conexión con el conjunto.

La zona de día es un ejemplo de cómo la claridad espacial puede alcanzarse con decisiones precisas. La cocina se despliega en dos frentes: uno más bajo, abierto y funcional, y otro más alto, que resuelve las necesidades de almacenaje sin interrumpir la ligereza visual. Los tonos elegidos —blanco, verde pastel cálido y una baldosa que actúa como piel sutil en el frente— acentúan esta sensación de ligereza, acompañada por la verticalidad de dos luminarias que subrayan el plano de trabajo.

Esta cocina, abierta al comedor, continúa con la misma lógica material y tonal. Una mesa sencilla y una lámpara colgante completan un conjunto en el que cada pieza está al servicio del espacio. Las ventanas alargadas, alineadas en ambos extremos, bañan de luz natural toda la zona de día, prolongando la idea de apertura.

A medida que se avanza hacia la zona de noche, el ritmo se ralentiza. La habitación, serena y despejada, continúa bajo el mismo cielo de vigas que generan una atmósfera cálida y silenciosa. La organización del almacenamiento está pensada para integrarse sin alterar el vacío, generando un espacio de descanso que respira.

En contraste, el baño se presenta como una excepción volumétrica: un pequeño cubo, más bajo, que emerge dentro de la habitación como un espacio independiente, marcando un cambio de escala sin romper el discurso formal del conjunto.

Este proyecto es, ante todo, una conversación entre lo que permanece y lo que se transforma. Cada decisión ha estado al servicio de esa doble mirada: reconocer el valor del tiempo que ya habitaba el lugar —encarnado en sus vigas, en su orientación, en sus límites— y diseñar un nuevo tiempo por venir, marcado por la luz, el uso cotidiano y el equilibrio entre zonas.

Dibujo realizado por Irene Beltrán Monclús, Arquitecto junior de Cronotopos Arquitectura