Solitud frente al mediterráneo

Vivienda unifamiliar en Alicante

“Solitud” no es solo el nombre de una vivienda, sino una declaración de intenciones: la elección de una soledad tranquila, que permite disfrutar del entorno y de uno mismo. Esta casa modular en Alicante ha sido concebida como un refugio que invita tanto a la compañía como a la introspección. En ella, la arquitectura crea el equilibrio entre los espacios compartidos y las zonas personales, ofreciendo una amplia variedad de ambientes para disfrutar de los intereses polifacéticos del cliente de forma libre y serena.

Nacida de una arquitectura que entiende la vivienda como reflejo de quien la habita, esta casa modular en el Levante integra funcionalidad, bienestar y carácter propio. El proyecto responde a una idea clara: no construir una vivienda convencional, sino un lugar donde cada rincón refleje la identidad y las pasiones de su propietario.

Cliente: Privado
Superficie: 610 m2
Estado: En construcción
Cronología: 2023
Localización: Alicante, España
Tipo de obra: Vivienda unifamiliar
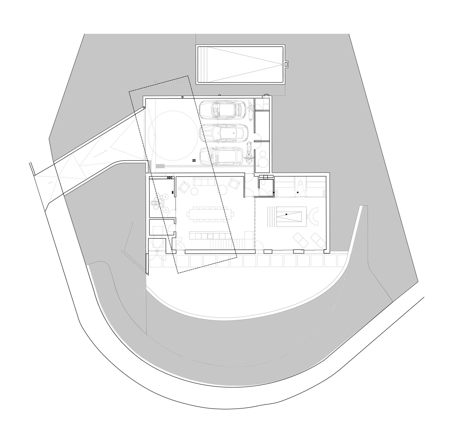
Con más de 600 m² construidos, esta casa modular en Alicante se distribuye en tres niveles que combinan precisión técnica y sensibilidad espacial. Dos volúmenes sobre rasante definen la silueta principal del conjunto, mientras que un tercer volumen, parcialmente integrado en la tierra, completa la composición. Los volúmenes superiores se rotan los grados exactos necesarios para proteger la entrada, dar acceso al garaje y optimizar el soleamiento del huerto y la piscina, demostrando una arquitectura que dialoga con la orientación y la luz natural.
El nivel inferior se abre mediante un patio inglés que aporta luminosidad y ventilación a los espacios semienterrados. Este patio actúa como un pequeño jardín interior, un espacio donde la naturaleza penetra en la vivienda y donde se cultiva, de forma literal y simbólica, el equilibrio entre cuerpo y mente. Es un ejemplo de cómo la arquitectura puede conectar interior y exterior con un gesto sencillo y eficaz.
El programa de esta vivienda modular en el Levante responde al deseo del cliente de reunir en un solo lugar todos los aspectos de su vida. La casa se convierte así en un espacio multifuncional, donde lo cotidiano convive con el ocio y la creación. Además de las zonas de descanso y convivencia, la casa modular en Alicante alberga un garaje para cuatro coches, una sauna, un hammam, un cuarto de pintura y una sala de música. Cada estancia ha sido planificada para ofrecer un uso específico, adaptándose al ritmo del día y a las aficiones de su propietario.
La relación entre el interior y el exterior es fundamental en esta vivienda modular en Alicante. Los materiales, la orientación y la luz se combinan para generar una sensación continua de apertura y confort. La arquitectura trabaja aquí con precisión y naturalidad, creando un entorno donde cada volumen, cada hueco y cada transición tienen un sentido funcional y estético.

Tanto la organización del programa como el diseño de los espacios reflejan una idea clara: construir una vivienda modular que sea completamente personal, adaptada a las necesidades presentes y futuras de su propietario. La arquitectura, en este caso, actúa como un contenedor de vida, capaz de reunir en un solo lugar la actividad, el descanso y la expresión individual.

Dibujo realizado por María Pineda Cerro, Arquitecta junior de Cronotopos Arquitectura