Viviendas modulares en Palma de Mallorca, Mallorca
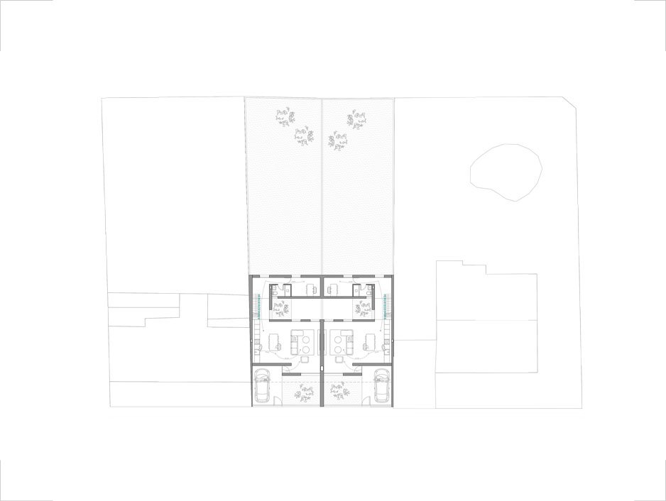
Las Siamesas nace de un proyecto compuesto por dos viviendas modulares diseñadas en Zaragoza y enviadas a Palma de Mallorca. Emplazadas en un terreno de 665 m2,estas viviendas modulares nacen de la búsqueda de unos espacios intermedios que garanticen la unión e intimidad de ambas familias.
Cliente: Jose Luis
Superficie: 180 m2
Estado: En licencia
Cronología: Nov 2018 – Actualidad
Localización: Palma de Mallorca
Tipo de obra: Vivienda Modular
Precio de construcción: 355165.23€
De este patio y su apertura hacia el sur nace la configuración volumétrica de las viviendas modulares. Esta forma escalonada permite que la luz penetre en toda la vivienda, al mismo tiempo que enfoca la visual al gran jardín situado al fondo de la parcela.
Al mismo tiempo, el edificio se retranquea de la alineación con la calle tratando de conseguir un menor impacto visual. Y a su vez, al hacer que el volumen de la planta primera vuele hacia la calle, se establece un espacio intermedio previo a la entrada, un “llegar, cruzar, estar” que invita al interior de la vivienda.
Axonometría del conjunto
Por ello se crea un sistema de contraventanas correderas que consigue un mayor dinamismo en la fachada, intimidad hacia el exterior y protección solar controlada hacia el interior.
Con la misma importancia se planteó el espacio común que se crea en el patio. Un lugar flexible, ya que puede ser un espacio único y común o dividido en dos, para tener la posibilidad de generar una privacidad entre ambas familias o bien generar un espacio compartido de relación, articulando ambas viviendas.
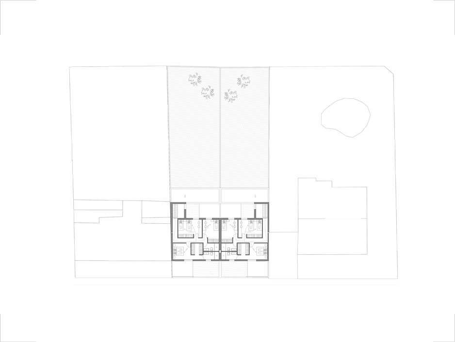
Otro elemento articulador a destacar lo encontramos en el espacio salón-cocina-comedor de cada vivienda, el cual tiene la vocación de modificar el TOPOS en cualquier CRONOS. Los muebles que componen la cocina se diluyen dejando paso a la escalera. Toda esa intervención a medida es lo que da tal carácter al espacio central de la vivienda modular
Planta proyecto y flujos
Dibujo realizado por Diego Chueca Casado, Arquitecto Junior en Cronotopos Arquitectura
