Revivir un fósil

Rehabilitación integral de edificio en Zaragoza

La ciudad comienza por una calle, la calle se hace edificio a edificio que deben ser un conjunto de voluntades por hacer ciudad. Es por eso que rehabilitar cada centímetro cuadrado de este edificio de 10 viviendas y dos locales ubicado en el casco histórico de Zaragoza ha sido para nosotros hacer un poco de ciudad.

Cliente: Sociedad cooperativa
Superficie: 1000 m2
Estado: Finalizado
Cronología: Septiembre 2017 – 2019
Localización: Calle Espartero
Tipo de obra: Rehabilitación de edificio
Precio construcción: 750.000 €

Rehabilitar un edificio catalogado de 1850 requiere de una atención diaria como arquitecto, pero si le añades al trabajo una labor de “Project manage- ment”, control económico, la gestión proyectual de las diez familias de una cooperativa y la solicitud y gestión de una subvención, el esfuerzo se convierte en titánico. El trabajo realizado en nuestro ya cariñosamente apodado como dinosaurio fue integral y minucioso, y solo fue posible gracias al equipo multidisciplinar que compone el conjunto de Cronotopos.

Aunque el proyecto de arquitectura generado para la rehabilitación del edificio fue un documento altamente detallado, se acabó convirtiendo en una declaración de intenciones para el verdadero reto que supuso la dirección de obra. Más de 200 replanteos y recálculos quedaron atrás para ejecutar una obra que estuvo repleta de desafíos estructurales, cálculos energéticos e ingeniosas estrategias económicas para conservar su viabilidad.

La rehabilitación del edificio reforzó estructuralmente cada uno de los 15 pilares del edificio, recalzó la cimentación de buena parte del mismo y respetó aquellas vigas de madera y muros de ladrillo aragonés que tenían ya más antigüedad que cualquier ser humano viviente. Fue un ejercicio de paciencia y de sensibilidad que se apoyó en una generosa subvención solicitada y gestionada por el estudio que consiguió sacar adelante todos los imprevistos que se encontraron en obra, así como una adaptación de su sótano que consiguió completar la necesidad de trasteros en esa zona de la ciudad. Energéticamente la rehabilitación del edificio se adaptó al siglo XXI utilizando ventanas de triple vidrio con triple rotura de puente térmico, una rehabilitación total de fachadas y cubierta y sistemas de aerotermia y calderas de alta eficiencia adaptados a cada uno de los socios de la cooperativa.

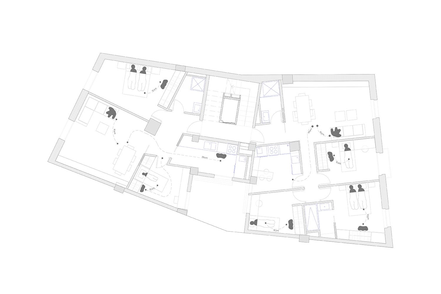
De las 10 viviendas no hay ninguna igual como tampoco existe una familia igual a otra, la rehabilitación del edificio personalizó cada una de sus unidades a la forma de vivir de sus habitantes. A nivel proyectual la rehabilitación del edificio está compuesta por tres viviendas de un dormitorio, tres viviendas de dos dormitorios y cuatro viviendas de tres dormitorios pero si algo nos gustaría destacar como estudio son los elementos comunes.

Se trabajó exhaustivamente en ampliar el zaguán y darle una materialidad contemporánea que resaltara aquellos elementos históricos que comprendían la rehabilitación. La madera el acero corten y el ladrillo aragonés se relacionó con baldosas porcelánicas de tonos neutros, vidrios y luces indirectas que de algún modo ensalzaron la historia a través de su neutralidad.

El resultado fueron tres años de intenso trabajo, cientos de horas y una satisfacción enorme de saber que cada uno de los agentes, promotor, constructor y sobre todo clientes están orgullosos de haber formado parte y vivir en nuestro querido fósil.

Estado previo a la intervención, proyecto y flujos de uso

El futuro primivito, Dibujo realizado por Sou Fujimoto