Vivienda de ayer y mañana

Vivienda unifamiliar Azagra, España

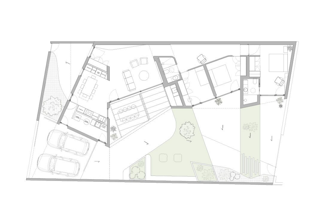
Vivienda unifamiliar adaptable, construida mediante un sistema modular, que integra funcionalidad, accesibilidad y confort, maximizando la luz natural y la conexión con un jardín privado.

“Vivienda de ayer y mañana” propone una arquitectura pensada para acompañar la vida en el tiempo, donde funcionalidad, accesibilidad y bienestar se integran de manera natural. Un hogar que no solo responde a las necesidades actuales, sino que se adapta a las distintas etapas de sus habitantes sin perder coherencia.

Adosada a la medianera norte, la vivienda se abre hacia un jardín orientado al sur que se convierte en su núcleo visual y espacial. Más que un elemento exterior, el jardín actúa como origen del proyecto, organizando la disposición de los espacios y definiendo la forma de habitar.

Cliente: Nuria
Superficie: 364m2
Estado: Finalizado
Cronología: 2025
Localización:Azagra, España
Tipo de obra: Vivienda unifamiliar
La organización del proyecto responde a una estrategia precisa: los espacios de servicio se disponen de manera escalonada, liberando las estancias principales hacia el jardín. Esta disposición permite que las zonas de convivencia se vinculen directamente con el exterior, estableciendo una relación continua entre interior y paisaje.

Los porches y espacios intermedios acompañan esta lógica, generando transiciones graduales que suavizan el paso entre ámbitos y construyen un recorrido fluido.

Aquí, el exterior no es un límite, sino el punto de partida. La vivienda se despliega en torno al jardín, donde la luz, el aire y el paso del tiempo forman parte activa de la experiencia doméstica.

Los juegos de muros y perspectivas construyen recorridos que se descubren progresivamente, enmarcando vistas y controlando la entrada de luz. La celosía, como elemento filtrante, introduce matices de sombra y privacidad, reforzando el carácter doméstico del conjunto.

El sistema constructivo modular permite que cada componente estructural y de fachada se integre de forma controlada y eficiente, asegurando durabilidad y precisión en la ejecución.

El diseño interior se ha pensado para potenciar la entrada de luz natural, lo que contribuye a la creación de un ambiente más luminoso y espacioso. Las vistas al jardín y al entorno natural enriquecen la experiencia de habitabilidad, permitiendo a los habitantes disfrutar de un espacio que se integra plenamente con la naturaleza circundante.

Esta vivienda unifamiliar está pensada para la convivencia familiar, con espacios amplios y bien distribuidos que favorecen la interacción y el bienestar. Los volúmenes del diseño se distribuyen de manera que cada habitación tenga acceso al jardín, creando un ambiente de convivencia en el que el confort y la funcionalidad son prioritarios.

Cada habitación ha sido diseñada para aprovechar al máximo la luz natural y las vistas, lo que genera un espacio agradable y relajante.

Además, se ha priorizado la eficiencia energética y el respeto al entorno en la elección de materiales y técnicas constructivas. Se han seleccionado materiales de alta calidad que no solo ofrecen durabilidad y resistencia, sino que también contribuyen a la sostenibilidad de la vivienda, reduciendo su impacto ambiental. La naturaleza modular de la construcción permite integrar estos materiales de manera eficiente, minimizando desperdicios y optimizando el proceso constructivo.

“Vivienda de ayer y mañana” entiende la arquitectura como un soporte para la vida, capaz de evolucionar sin perder su esencia. Una casa que se abre al exterior, que se recorre con fluidez y que acompaña a sus habitantes en el tiempo.

Porque habitar no es solo ocupar un espacio, sino establecer una relación continua entre el cuerpo, la materia y el entorno.

Dibujo realizado por Alejandro Lezcano Maestre, Arquitecto director de Cronotopos Arquitectura